Zu Vermieten €989 - Etagenwohnung
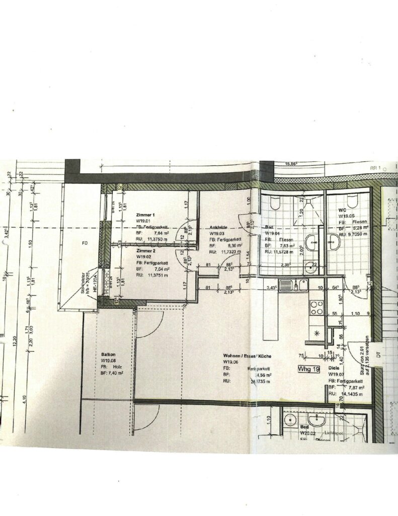
In einem terrassenförmig angelegten Haus, bieten wir Ihnen eine lichtdurchflutete gut geschnittene 2 Zimmer Wohnung mit Balkon im 4 Obergeschoss. Von hier haben Sie einen wunderbaren Blick über Werne. Die Wohnung verfügt über einen offenen Wohn-Küchenbereich ( mit Einbauküche ), ein Schlafzimmer, ein Badezimmer und ein Gäste-WC. Die geräumige Diele zwischen Schlaf-und Badezimmer sowie der Abstellraum runden das Mietangebot ab. Die Bodenbeläge variieren zwischen Parkett und Fliesen.
Werne liegt zwischen den Großstädten Dortmund und Münster. Ein Bahnanschluss, sowie eine Schnellbuslinie verbindet Werne mit beiden Städten.Die Wohnung befindet sich nur 50 m von der Fußgängerzone entfernt. Neben der attraktiven Fußgängerzone mit Kirche, zahlreichen Cafés, Geschäften des täglichen Bedarfs bequem zu Fuß zu erreichen. Post, Busbahnhof, Arztpraxen, Apotheken und ein Einkaufszentrum sind nur einen Steinwurf entfernt.
Ganz Werne liegt den Bewohnern zu Füßen.
Die Wohnung ist seniorengerecht, barrierefrei und sicher über einen Fahrstuhl zu erreichen. Ein kostenpflichtiger Wohnservice wird mitangeboten und wird mit 50 EUR pro Person berechnet. Dieser Service bietet ihnen flexible und wählbare Leistungen zur Unterstützung ihrer persönlichen Unabhängigkeit. Anteilige Gemeinschaftsflächen von 10,43 m², wie Dachterrasse, Gemeinschaftsraum, Sportraum und Gästezimmer stehen dem Mieter mit zur Verfügung. Es handelt sich um eine Staffelmiete die sich alle zwei Jahre um 2 % erhöht.
Weitere Details
- Zimmer insgesamt: 2
- Heizungsart: Zentralheizung
- Anzahl Etagen: 4,0
- Etage: 4
- Kaltmiete: 989 €
- monatl. Betriebs-/Nebenkosten: 350 €
- Kaution: 2,04 €
- Wohneinheiten: 23
- Befeuerung: Pellets
- Küche: Einbauküche
- Baujahr: 2015
- Zustand: neuwertig
- Immobilie ist verfügbar ab: sofort
















