Zu Vermieten €585 - Erdgeschosswohnung
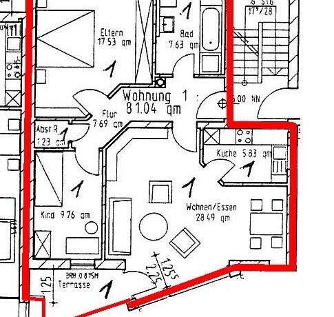
Die Wohnung ist aufgeteilt in Wohn-/Esszimmer, Schlafzimmer, Kinderzimmer, Küche, Bad mit Dusche und Wanne, Abstellraum. Ein Kellerraum und eine Garage gehört ebenfalls zur Wohnung.
Das Mietobjekt befindet sich im Erdgeschoss eines sehr gepflegten Mehrfamilienhauses mit insgesamt 17 Wohneinheiten in ruhiger, stadtnaher Lage.
Wir bitten sich bei Interesse mit einer s c h r i f t l i c h e n Anfrage über unsere Homepage oder das Internetportal an uns zu wenden. Wir senden Ihnen dann umgehend ein Exposé per E-Mail zu. Bei näherem Interesse zeigen wir Ihnen die Immobilie gerne bei einer persönlichen Besichtigung.
Weitere Details
- Zimmer insgesamt: 3
- Anzahl Stellplätze: 2
- Anzahl Etagen: 3,0
- Etage: 1
- Kaltmiete: 585 €
- monatl. Betriebs-/Nebenkosten: 230 €
- Kaution: 1.240 €
- Anzahl Außenstellplätze: 1
- Anzahl Garagenstellplätze: 1
- Stellplatzmiete (Garage): 35 €
- Befeuerung: Gas
- Stellplatzart: Garage, Freiplatz
- Baujahr: 1998
- Zustand: gepflegt
- Immobilie ist verfügbar ab: 01.02.2026






