Zu Verkaufen €850.000 - Geschäftshaus
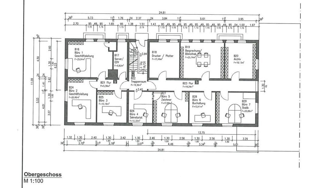
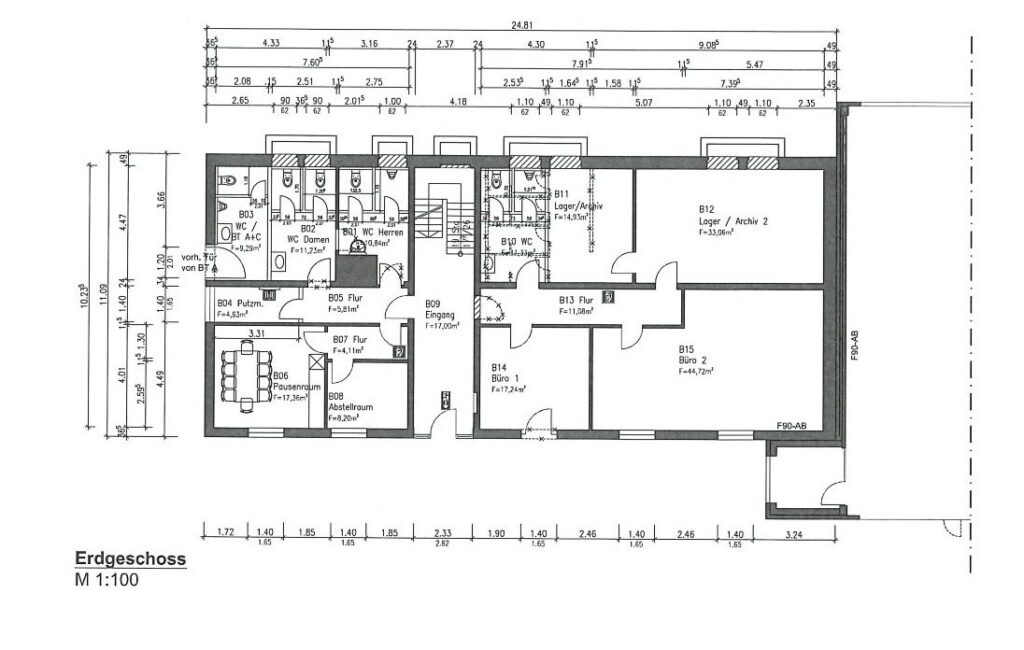
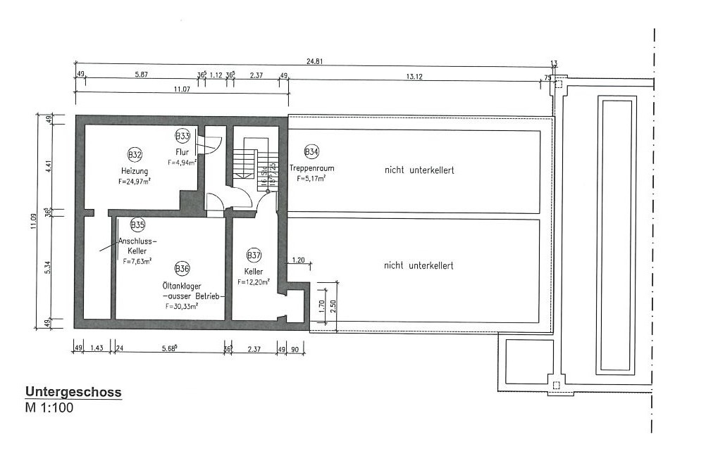
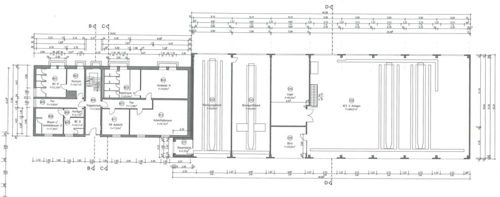
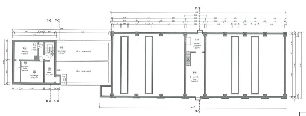
Renditestarkes Gewerbe-/Anlageobjekt mit PV-Anlage als Kapitalanlage. Das Gewerbeobjekt verfügt über mehrere Hallenbauteile sowie Büroeinheiten mit insgesamt 10 Mieteinheiten. Insgesamt ca. 1.740 m² vermietbare Fläche, verteilt auf 3 Gebäudeteile. Die gesunde Mieterstruktur aus caritativen Mietern, Architektur-/Ingenieurbüro als Dienstleister und gewerblichen Mietern sorgt für eine sichere und solide Geldanlage. Die Mieteinnahmen aus der Immobilie betragen EUR 65.388,00 p.a.. Hinzu kommen die Einnahmen aus der leistungsstarken PV-Anlage, die sich auf den Dächern des Gewerbeobjektes befindet. Diese belaufen sich auf ca. EUR 14.880,00 p.a.. Hieraus ergibt sich ein Gesamtertrag von ca. EUR 80.268,00 p.a.. 2010 wurde das Gewerbeobjekt vollumfänglich renoviert und modernisiert. 28 Parkplätze stehen den Mietern und Kunden direkt vor dem Objekt zur Verfügung. Voll vermietet!
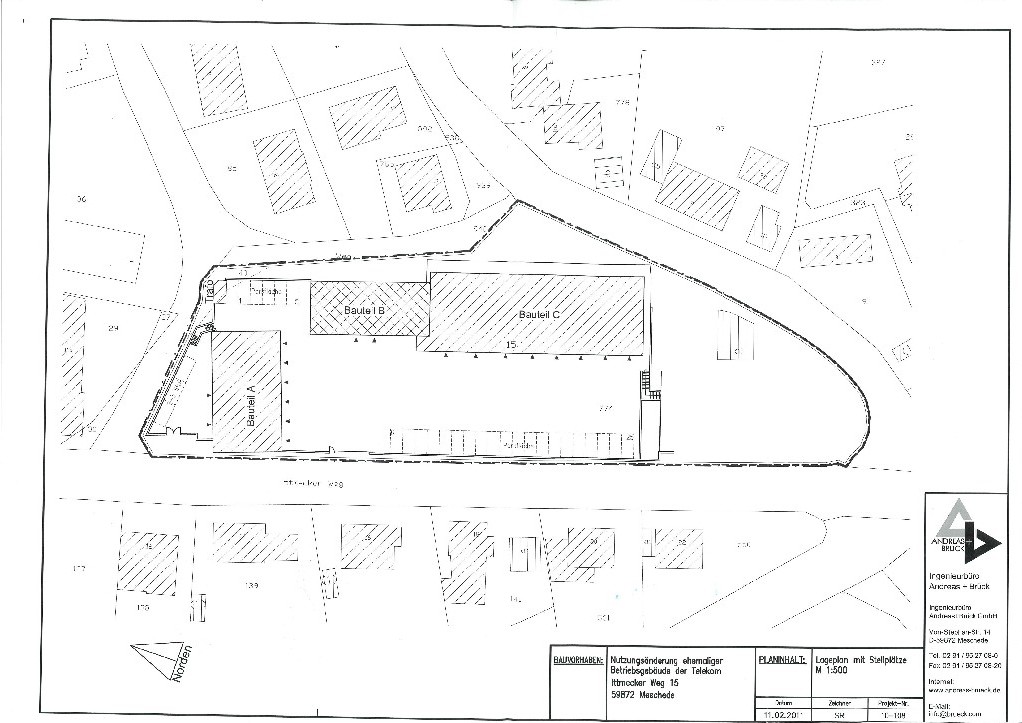
In zentraler Lage von Meschede befindet sich dieses gemischt genutzte Gewerbeobjekt im Top-Zustand. Die sehr gute überregionale Verkehrsanbindung macht diesen Standort so interessant. Öffentlicher Nahverkehr, Bahnhof und Autobahnanschluss sind schnell zu erreichen.
3 Gebäudeteile mit Hallen und Büroflächen. Besucherparkplätze.
Weitere Details
- Grundstücksfläche: 4.143 m²
- Anzahl Stellplätze: 28
- Heizungsart: Zentralheizung
- Anzahl Etagen: 3,0
- Kaufpreis: 850.000 €
- Courtage: 3.57 %
- Aktuelle Mieteinnahmen: 80.268 €
- Anzahl Außenstellplätze: 28
- Vermietbare Fläche: 1.740 m²
- Art der Ausstattung: Standard
- Befeuerung: Öl
- Stellplatzart: Freiplatz
- Baujahr: 1980
- Zustand: gepflegt
- Immobilie ist verfügbar ab: sofort
























