Zu Verkaufen €650.000 - Halle
Bei dem zu veräußernden Objekt, das im Rahmen einer Insolvenzverwertung veräußert wird, handelt es sich um einen mit einem Ursprungsgebäude (Werkstatt- und Wohnnutzung) ausgestatteten Gewerbetrakt, der später um eine weitere Halle vergrößert wurde, die 2003 als Kirchengebäude genehmigt wurde, aber in ihrer aktuellen Nutzung als Werkstatt ohne Genehmigung genutzt wird. Im Außenbereich befinden sich die 26 Außenstellplätze. Vor dem Ursprungsgebäude befindet sich ein Autogastank.
In Bezug auf die Bebauung ist der Bebauungsplan Dortmund 142 seit dem 25 Oktober 1991 verbindlich. Die Insolvenzverwalterin hat einen Kurzbericht durch ein Ingenieurbüro, das die komplette Bauakte vorliegen hatte, erstellen lassen: Diese liegt ebenfalls in Kopie vor und kann bei konkretem Kaufinteresse und Vorlage einer indikativen Finanzierungsbestätigung gerne, wie auch alle anderen das Objekt betreffenden Unterlagen, in einem Datenraum digital zur Verfügung gestellt werden.
Die ursprüngliche Bebauung sah 1972 einen Neubau einer DAF PKW-Kundendiensthalle mit den Außenmaßen von rd. 14 x 35 Meter, Büroflächen im Obergeschoss und Nebenräumen in dieser Halle vor.
1979 wurde die Errichtung einer 17 x 31 Meter großen PKW-Einstellhalle beantragt, deren Schlussabnahme im Dezember 1980 stattfand.
1991 wurde beantragt einen Prüfstand einzubauen.
2007 erfolgten der Antrag und die Genehmigung auf die Errichtung und den Betrieb einer Füllanlage/Autogas Tankstelle mit einem oberirdischen 2,9 Tonnen fassenden Flüssiggasbehälter.
Diese fand ihre Genehmigung im August 2007. Hier liegen der Insolvenzverwalterin keinerlei Unterlagen bezüglich aktueller und gesetzlich vorgesehener Prüfungen vor, sodass gegebenenfalls im Rahmen des Ankaufs durch den Erwerber diese Prüfungen und daraus resultierende Auflagen zu erfüllen sind.
2001 erfolgte in Bezug auf die vorgenannte ursprünglich genehmigte PKW-Einstellhalle eine Nutzungsänderung zu einem Kirchengemeindehaus, der in 2003 auch entsprochen wurde mit Fertigstellungsbescheinigung im August 2003, sodass dieser Bereich aktuell mit einer Nutzung als Kirchengemeindehaus genehmigt ist. Die Nutzung ist aber eine andere, diese wird im Rahmen der im vorderen Ursprungsbereich genutzten Werkstatt als weiterer Werkstattbereich und Reifenlager genutzt. Diese Nutzung ist nicht genehmigt.
Dem Erwerber wird empfohlen vor dem Ankauf eine Besichtigung mit einem Architekten sowie Rücksprache mit der Stadt Dortmund, ob einer etwaig nach Erwerb geplanten Nutzung durchzuführen.
Die Aufteilung gestaltet sich aktuell wie folgt:
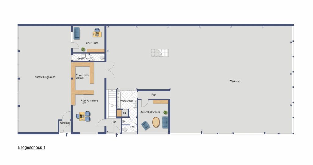
Bürogebäude
· Eingangs- und Empfangsbereich
· Büros im OG
· Kunden-WC
Halle 1
· Werkstatt
Halle 2
· Werkstatt und Lager (als Kirchengebäude genehmigt)
Perfekte Lage in einem Gewerbegebiet unweit A40, A45, B1, B236 unweit Körner Hellweg.
Die Ausstattung ist überwiegend baujahrsentsprechend.
Der aktuelle Eigentümer hat in 2023 die Fensterfront zur Straße erneuern lassen, eine entsprechende Genehmigung konnte in der Bauakte nicht vorgefunden werden.
Energieausweistyp: Bedarfsausweis
Endenergiebedarf Wärme: 201,8 kWh/(m²·a)
Endenergiebedarf Strom: 10,7 kWh/(m²·a)
Endenergieverbrauch: 242,68 kWh/(m²·a)
Energieeffizienzklasse: G
Befeuerungsart: Öl
Baujahr: 1972
Energieausweis gültig bis: 07.01.2036
Besonderheiten:
Käuferseits wird diese Immobilie im Rahmen eines Insolvenzverwaltungsverfahrens veräußert. Das heißt, Verkäuferin ist die durch das Amtsgericht bestellte Insolvenzverwalterin.Der Kaufvertrag wird umfangreiche Haftungsausschlüsse zugunsten der Verkäuferin enthalten, insbesondere auch entsprechende Haftungsausschlüsse aufgrund des Zustandes und des Alters des Gebäudes. Dies dadurch bedingt, dass Eigentümerseits nur marginal Auskünfte erteilt, beziehungsweise kaum Unterlagen zur Verfügung gestellt wurden. Im Bezug auf den Kaufpreis ist zu berücksichtigen, dass durch eine Leasinggesellschaft Käuferseits drei Schiebefalltore eingebaut wurden, bezüglich welcher ein Leasingvertrag besteht, gemäß welchem außerhalb des Kaufvertrages eine zu vereinbarende Erwerbssituation zu gestalten ist oder im Worst Case von einem Ausbau dieser Tore ausgegangen werden muss. Im übrigen wird nochmals auf die Ausführung bezüglich der Genehmigungssituation des Kirchengemeindehauses sowie der Gesamtnutzungs- und Wartungssituation hingewiesen, was auch im Kaufvertrag verschriftlicht werden wird.
Die Beurkundung erfolgt bei Herrn Professor Dr. Krause in Essen, was von der Insolvenzverwalterin vorgegeben ist. Die Notarkosten trägt der Käufer. Wir bitten um unbedingte Beachtung dieser verkäuferseits vorgeschriebenen Vorgehensweise.
Wie vorerwähnt, hat die Einsicht in die Bauakten der Stadt Dortmund ergeben, einzelne Gebäudebereiche nicht in der jetzigen Nutzung als Autowerkstatt mit lager genehmigt sind, sondern als Kirchengemeindehaus.
Jeder Kaufinteressent sollte darüber hinaus grundsätzlich vor dem Erwerb mit dem Bauamt der Stadt Dortmund abklären, ob die von ihm beabsichtigte Nutzung baurechtlich genehmigungsfähig ist und auch seine diesbezüglichen Kosten hierfür einpreisen.
Weitere Details
- Grundstücksfläche: 2.005 m²
- Anzahl Stellplätze: 26
- Heizungsart: Zentralheizung
- Kaufpreis: 650.000 €
- Courtage: 3.57 %
- Anzahl Außenstellplätze: 26
- Nutzfläche: 1.071 m²
- Gesamtfläche: 1.071 m²
- Art der Ausstattung: Standard
- Befeuerung: Öl, Flüssiggas (eigener Tank)
- Bodenbelag: Fliesen
- Stellplatzart: Freiplatz
- Baujahr: 1972
- Zustand: renovierungsbedürftig
- Immobilie ist verfügbar ab: nach Absprache








